Claremont

Claremont

The Claremont is a spectacular home.

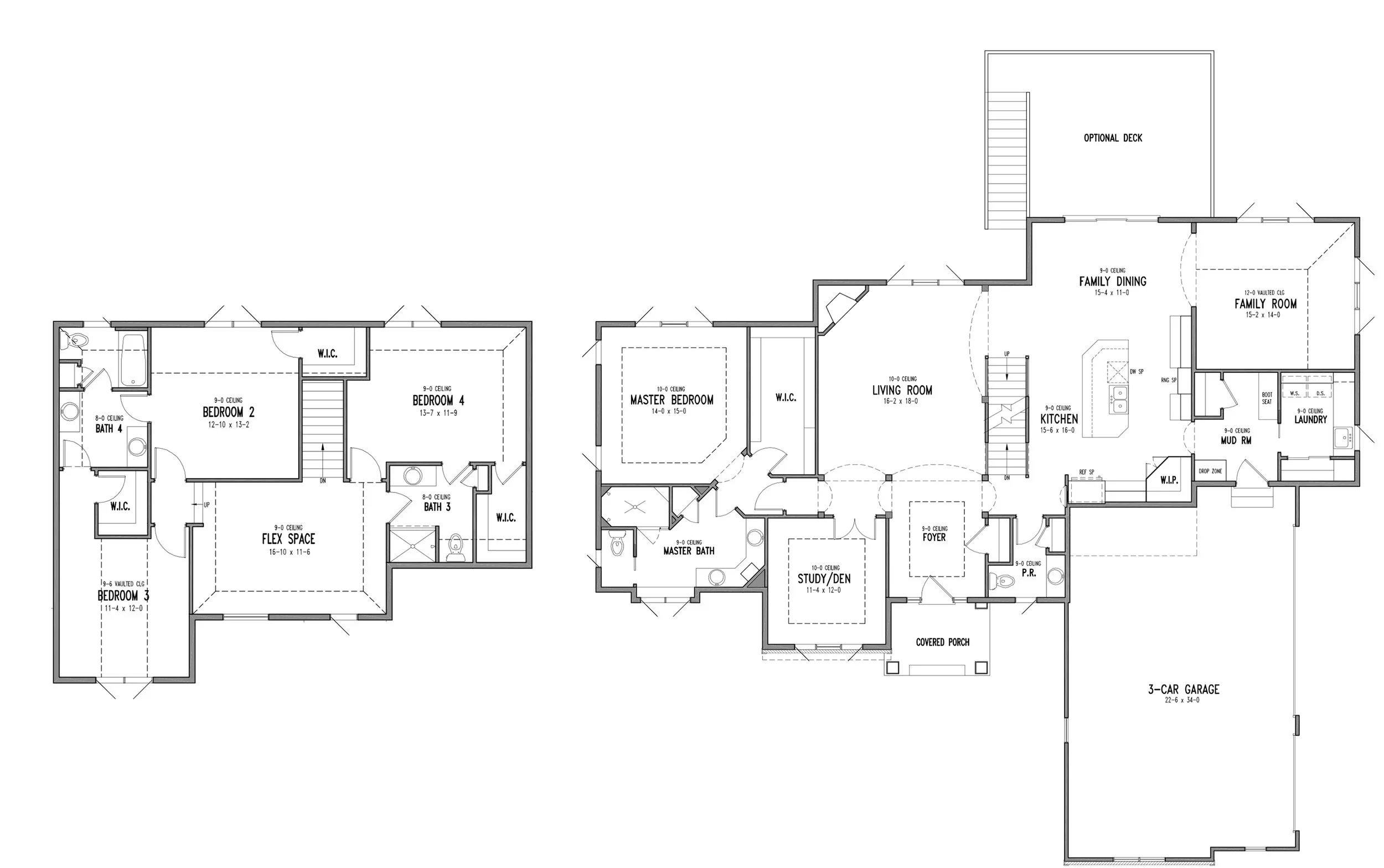
As a story and a half, this home features an elegant master bedroom on the first floor with a luxurious master bath. The second floor, a fabulous kids’ getaway, contains 3 bedrooms and a versatile flex space. With an open floor plan, this home is perfect for any family function. Built with James Craig Builder’s unique building practices, the Claremont is beautiful inside and out. With great arches and unique architectural designs, this home is suited for everyone.

Space. 1.5 Story, 3,204 sq ft
Bedrooms. 4 bedrooms
Bathrooms. 3.5 bath

Click on the floor plan to enlarge image.

Model Floor Plans
Contact us

With every turn, new memories are unlocked